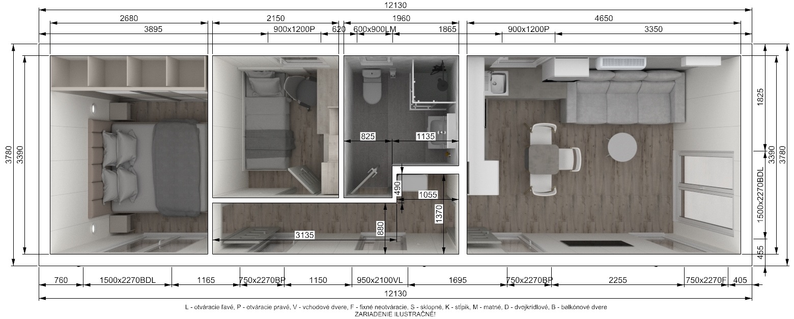
Nový rodinný mobilní dům SUPER ARKTIK ® FAMILY | 12x4m